Regulations (Standards - 29 CFR)
Drawings and Illustrations. - 1926 Subpart L App E

Regulations (Standards - 29 CFR) - Table of Contents Regulations (Standards - 29 CFR) - Table of Contents
• Part Number: 1926
• Part Title: Safety and Health Regulations for Construction
• Subpart: L
• Subpart Title: Scaffolds
• Standard Number: 1926 Subpart L App E
• Title: Drawings and Illustrations.

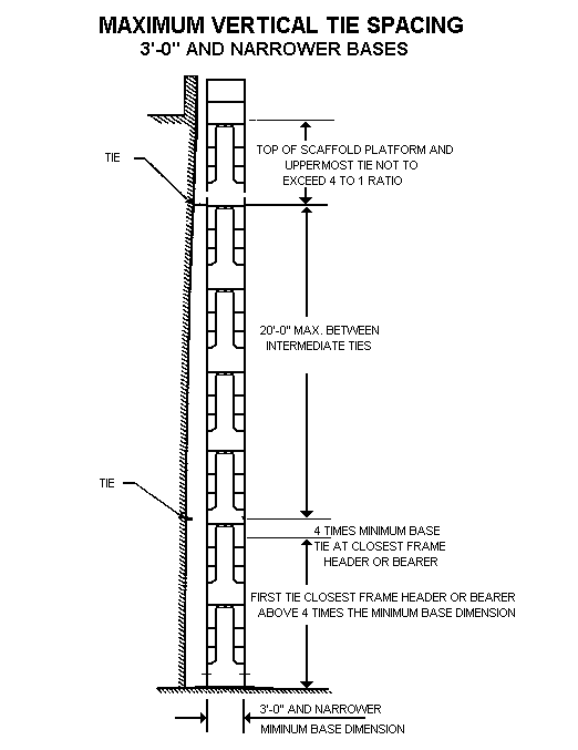
This Appendix provides drawings of particular types of scaffolds and scaffold components, and graphic illustrations of bracing patterns and tie spacing patterns.

This Appendix is intended to provide visual guidance to assist the user in complying with the requirements of subpart L, part 1926.

(For Figure 1, Click Here)

(For Figure 2, Click Here)

(For Figure 3, Click Here)

(For Figure 4, Click Here)

(For Figure 5, Click Here)

(For Figure 6, Click Here)

(For Figure 7, Click Here)

(For Figure 8, Click Here)

(For Figure 9, Click Here)

[61 FR 46025, Aug. 30, 1996; 61 FR 59831, Nov. 25, 1996]


Next Standard (1926 Subpart M) Next Standard (1926 Subpart M)

Regulations (Standards - 29 CFR) - Table of Contents Regulations (Standards - 29 CFR) - Table of Contents



Back to Top Back to Top www.osha.gov www.dol.gov

Freedom of Information Act |These pages are mirrored from the Occupational Safety and Health Administration General Construction Standards pages as reference links for their content in the live reporting of safety violations on active building sites by BuilderWerks users.
Courtesy of IntoText Corporation 813-968-2972 |8708 N Lynn Ave | Tampa FL 33604 |
Occupational Safety & Health Administration
200 Constitution Avenue, NW
Washington, DC 20210